R-CAD d.o.o. /
Slike/Albumi
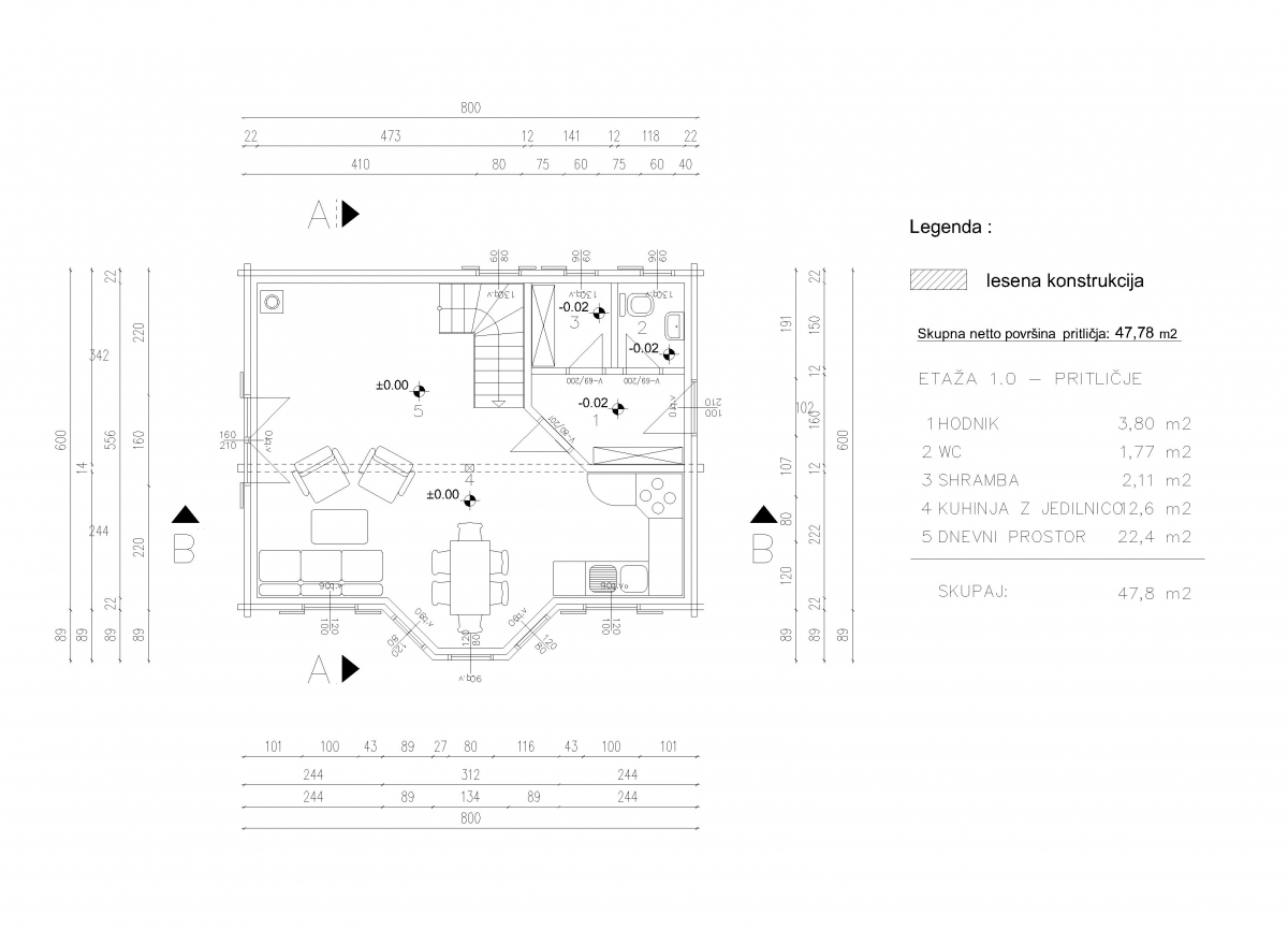
/ Objekt Toni
R-CAD d.o.o. .
Aug 22, 2013
43
pritličje
komentarji
Pošlji