Članek
Objavljeno Jul 10, 2015
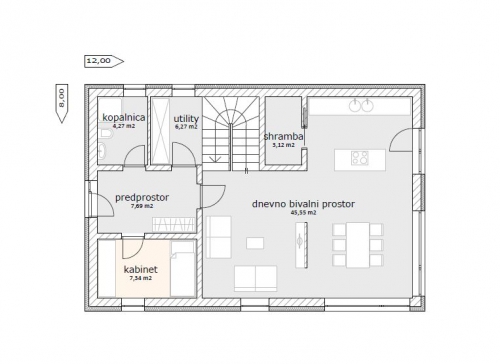
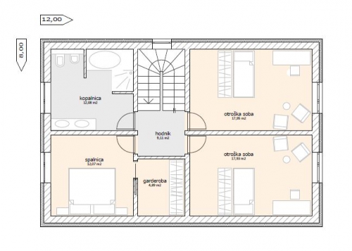
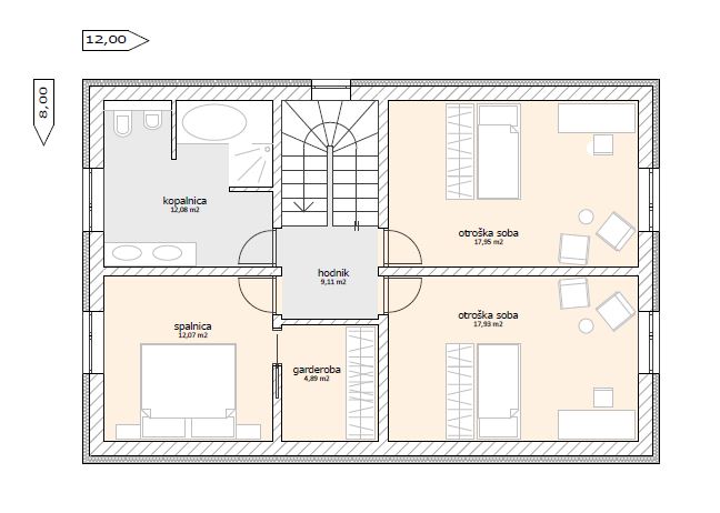
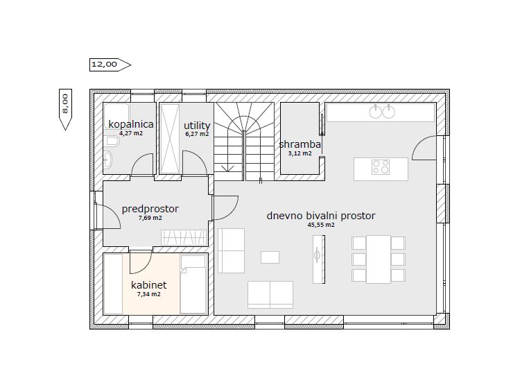
Hiša Doris je tradicionalne podolgovate tlorisne zasnove s klasično dvokapno streho, podaljšano nad teraso, kar daje objektu pridih sodobnega. Pritličje zajema predprostor, kopalnico, utility, kabinet ter velik osrednji dnevno – bivalni prostor, zraven kuhinje pa se nahaja še shramba. V mansardi sta dve enako veliki otroški sobi, spalnica z garderobo ter udobna kopalnica. Neto tlorisna površina objekta znaša 148,27 m2.












Jul 10, 2015