Članek
Objavljeno Jul 10, 2015
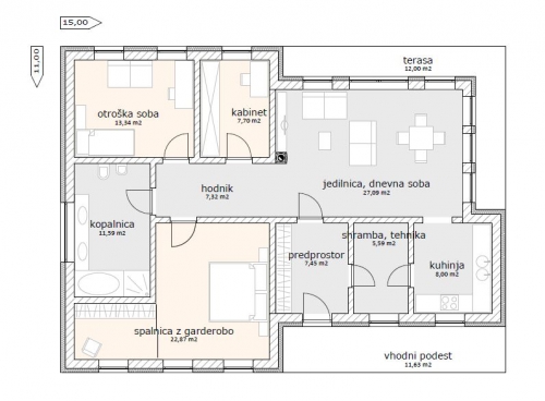
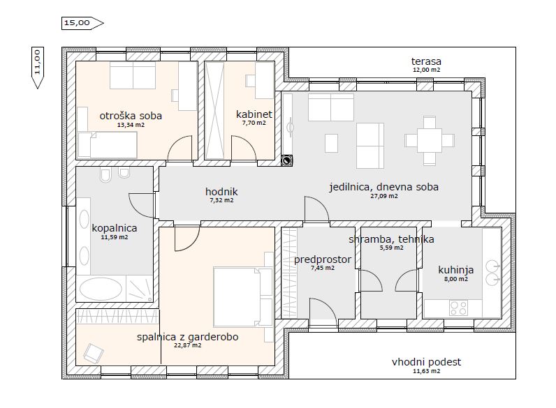
Hiša Eliza je zasnovana kot moderna pritlična hiša z ravno streho. Dnevno bivalni prostori imajo višjo svetlo višino prostora kot spalni del objekta. Hiša je zasnovana tako, da odgovarja sodobnemu načinu življenja. Predprostor je prostoren in omogoča dovolj odlagalne površine. Tehnika je združena s shrambo in omogoča prehod v kuhinjo. Kuhinja je zasnovana kot ločen prostor, pa vendar povezana z dnevno bivalnim prostorom, ki zajema jedilnico z dnevno sobo s kaminom. Hodnik je zasnovan kot povezovalni element med dnevnim delom objekta in spalnim delom, ki zajema kabinet, spalnico z garderobo, otroško sobo in kopalnico. Neto tlorisna površina objekta znaša 110,75 m2 + terasa 12,00 m2.








Jul 10, 2015