Članek
Objavljeno Jul 10, 2015
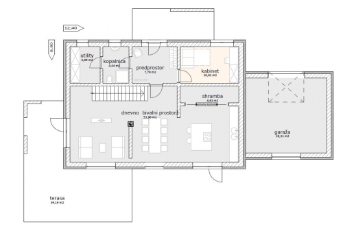
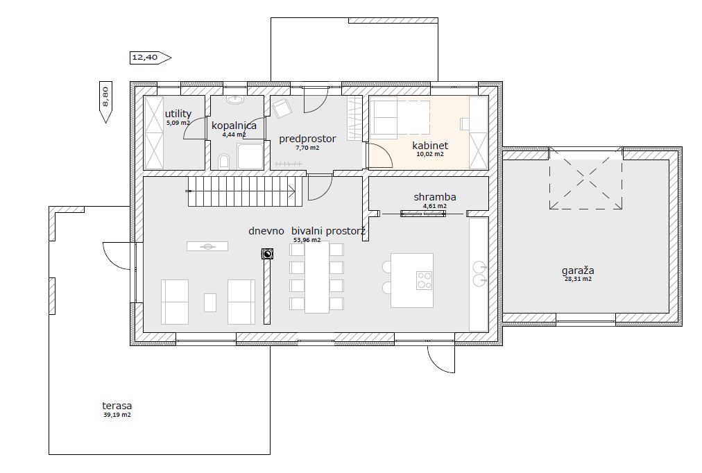
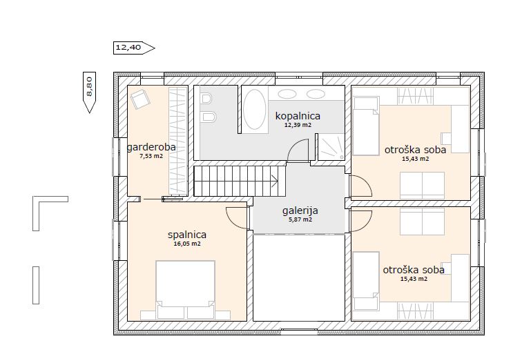
Hiša Danaja je moderna hiša z ravno streho, ki odgovarja potrebam sodobnega življenjskega sloga. Večji del pritličja tako zajemajo dnevno – bivalni prostori, to so kuhinja s shrambo, jedilnica in dnevna soba s stopniščem. V pritličju pa najdemo še kabinet, manjšo kopalnico ter utility. V mansardi z galerijo se nahaja spalni del objekta, ki zajema spalnico z garderobo, dve otroški sobi ter kopalnico. Neto tlorisna površina objekta znaša 158,52 m2.














Jul 10, 2015