Članek
Objavljeno Jul 10, 2015
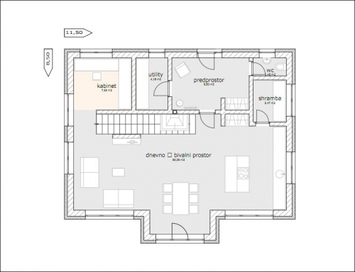
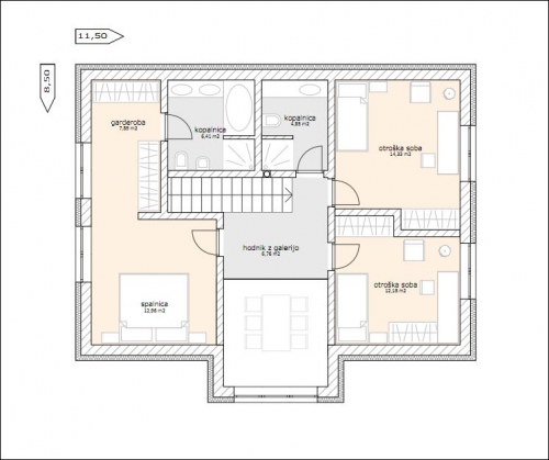
Hiša pritegne s sodobnim izgledom in funkcionalno zasnovo. Zasnovana je kot mansardni objekt, pri čemer se v pritličju poleg velikega dnevno – bivalnega prostora z galerijo in tehničnih prostorov nahaja še kabinet, v mansardi pa so predvidene sobe ter kopalnici, ločeni za spalnico ter otroški sobi. Neto tlorisna površina objekta znaša 145,18 m2.









Jul 10, 2015