Članek
Objavljeno Jul 10, 2015
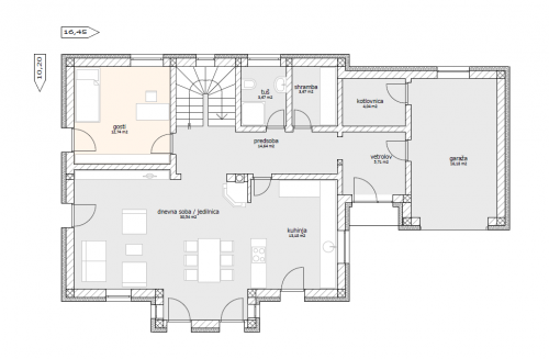
Pri hiši Azra sta združeni klasična zasnova in sodobni dizajn. Azra je zasnovana kot mansardni objekt z zračnim skupnim dnevno – bivalnim prostorom v pritličju in odgovarja sodobnemu načinu življenja. Pritlični prizidek je izkoriščen kot garaža, povezana z bivalnimi prostori preko vhodnega podesta. Neto tlorisna površina objekta znaša 173,59 m2.






Jul 10, 2015