Članek
Objavljeno Jul 10, 2015
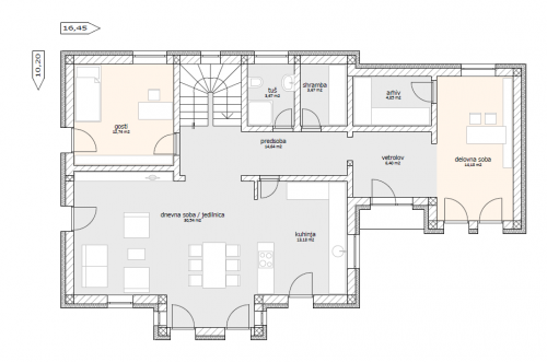
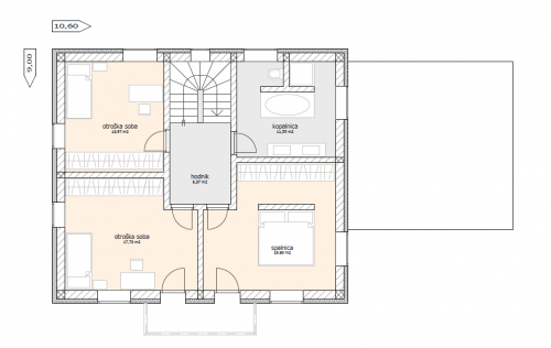
Hiša Ajša pritegne s sodobnim izgledom in funkcionalno zasnovo. Zasnovana je kot mansardni objekt, pri čemer se v pritličju poleg velikega dnevno – bivalnega prostora nahajata še soba za goste ter delovni prostor, v mansardi pa so predvidene sobe ter sodobno oblikovana kopalnica. Neto tlorisna površina objekta znaša 173,09 m2, pri čemer štirikapna streha omogoča dobro izkoriščenost mansarde.






Jul 10, 2015