Hrastnik - Novi dom / Edinstvena priložnost za nakup novogradnje v Zasavju
Večstanovanjski objekt se nahaja v neposredni bližini zdravstvenega doma, vrtca in osnovne šole. V bližini je tudi nakupovalno središče z gostinskim lokalom in pokriti bazen.
V večstanovanjskem objektu je 14 sodobnih, svetlih in funkcionalnih stanovanj, razporejenih v pritličju, dveh nadstropjih ter terasi. V kleti objekta je kolesarnica, shrambe ter skupni prostori. Notranje in zunanje površine posameznih stanovanj so projektirane v prijetne bivalne ambiente, ki zasledujejo praktičnost bivanja z velikimi dnevno bivalnimi prostori, ki dihajo in imajo razgled.
Notranjost vseh stanovanj se razvija okoli osrednjega bivalnega prostora, ki vključuje kuhinjo, jedilnico in dnevno sobo z izhodom, ki se odpira na nadpovprečno veliko pokrito ložo ali teraso, prostor diha. Stanovanjske površine vseh stanovanj so zasnovane tako, da bodo z odprtinami dosegle čim višjo stopnjo naravne osvetljenosti ter hkrati nudile odprt pogled na okolico.
Objekt in stanovanja označujejo naslednje lastnosti:
fasadni ovoj debeline 20 cm
troslojna zasteklitev oken
žaluzije na elektro pogon
talno ogrevanje
kvaliteten hrastov panelni gotov parket
kvalitetna sanitarna keramika
dvigalo v objektu

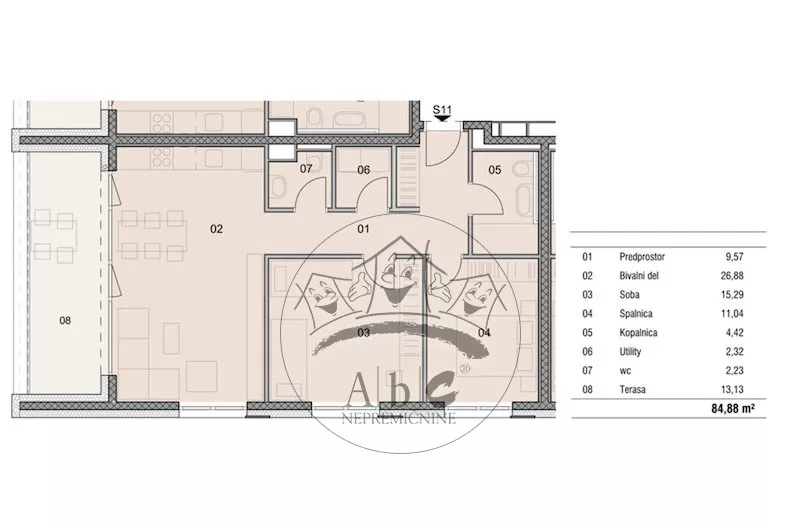
Stanovanje (011) se nahaja v 2. nadstropju in se sestoji iz:
Predprostor 9,57 m2
Bivalni del 26,88 m2
Soba 15,29 m2
Spalnica 11,04 m2
Kopalnica 4,42 m2
Utility 2,32 m2
Wc 2,23 m2
Terasa 13,13 m2
Skupaj 84,88 m2
K stanovanju spadata 1 parkirno mesto.
Energetska izkaznica po 334. členu EZ-1 bo pridobljena pred pridobitvijo uporabnega dovoljenja.
Podrobnosti oglasa:
Jun 06, 2024